Standort
Schipkauer Str. 1
01987 Schwarzheide
NF
3.900m²
BGF
6.770m²
BRI
32.500m³
Baukosten
zweistell. Mio-Betrag
Planung
2023-2024
Realisierung
2023-2025
Leistungsphasen
5 und 8
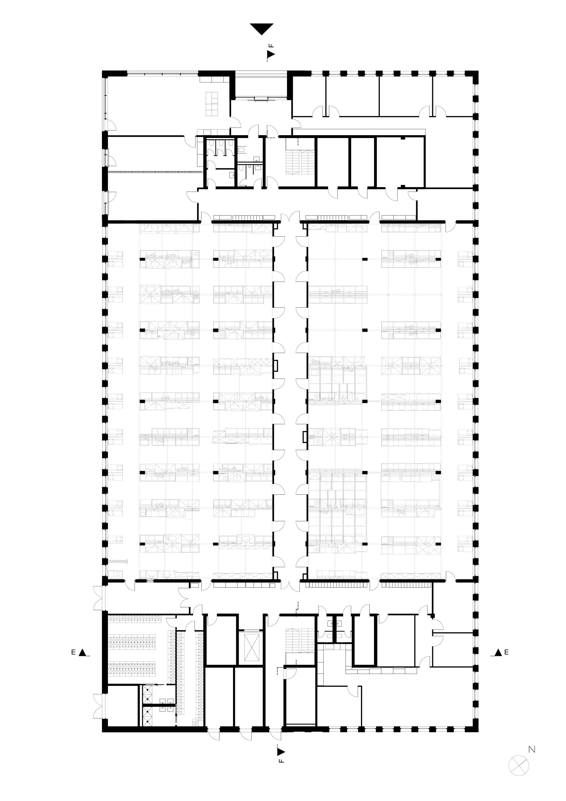
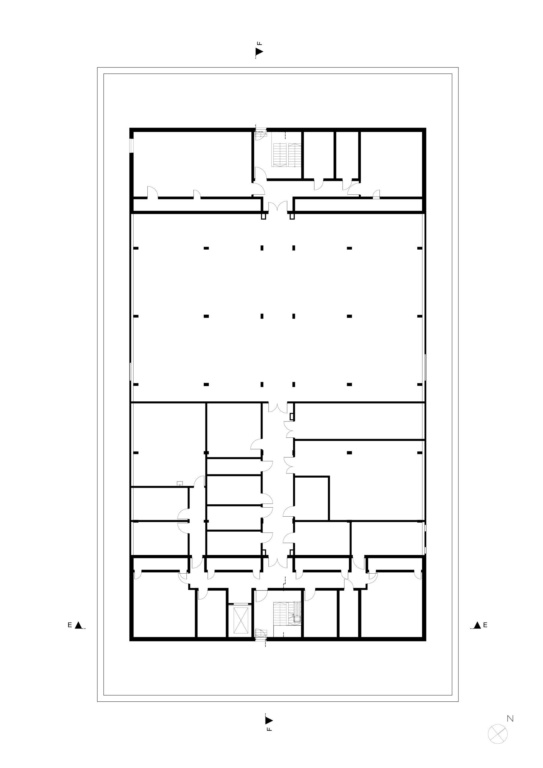
Der Laborneubau auf dem Gelände des Industrieparks Lausitz in Schwarzheide ersetzt bestehende Laborflächen mit dem Ziel der Zentralisierung und Verbesserung der Funktionalität.
Das dreigeschossige Gebäude ist als kompaktes Laborgebäude organisiert. Im Erd- und im Obergeschoss befinden sich zentral angeordnete Laborbereiche, die an den Stirnseiten durch Büroflächen ergänzt werden. Diese Struktur ermöglicht kurze Wege zwischen Laboren und Büros und unterstützt effiziente Arbeitsabläufe. Im zurückgesetzten Technikgeschoss befinden sich haustechnische Anlagen und Lagerflächen.
Im Erdgeschoss befinden sich in unmittelbarer Nähe zum Haupteingang Seminar- und Aufenthaltsbereiche. Separate Zugänge für Mitarbeitende sowie für Probenannahme und Logistik sorgen für eine klare funktionale Erschließung.
Die Klinkerfassade greift die Materialität der historischen Werksgebäude auf und folgt in ihrer Gliederung dem modularen Raster der Laborstruktur. Großzügige Glasflächen betonen Eingangs- und Sonderbereiche.
Der Neubau vereint damit funktionale Anforderungen moderner Laborarbeit mit einer klaren architektonischen Haltung und fügt sich zugleich sensibel in das bestehende Ensemble des Standortes ein.
