Standort
Kahrner Straße 16
03042 Cottbus
NF
6.085m²
BGF
10.002m²
BRI
35.618m³
Baukosten
ca. 16 Mio €
Planung
2015 - 2024
Realisierung
2017 - 2025
Leistungsphasen
1 - 9
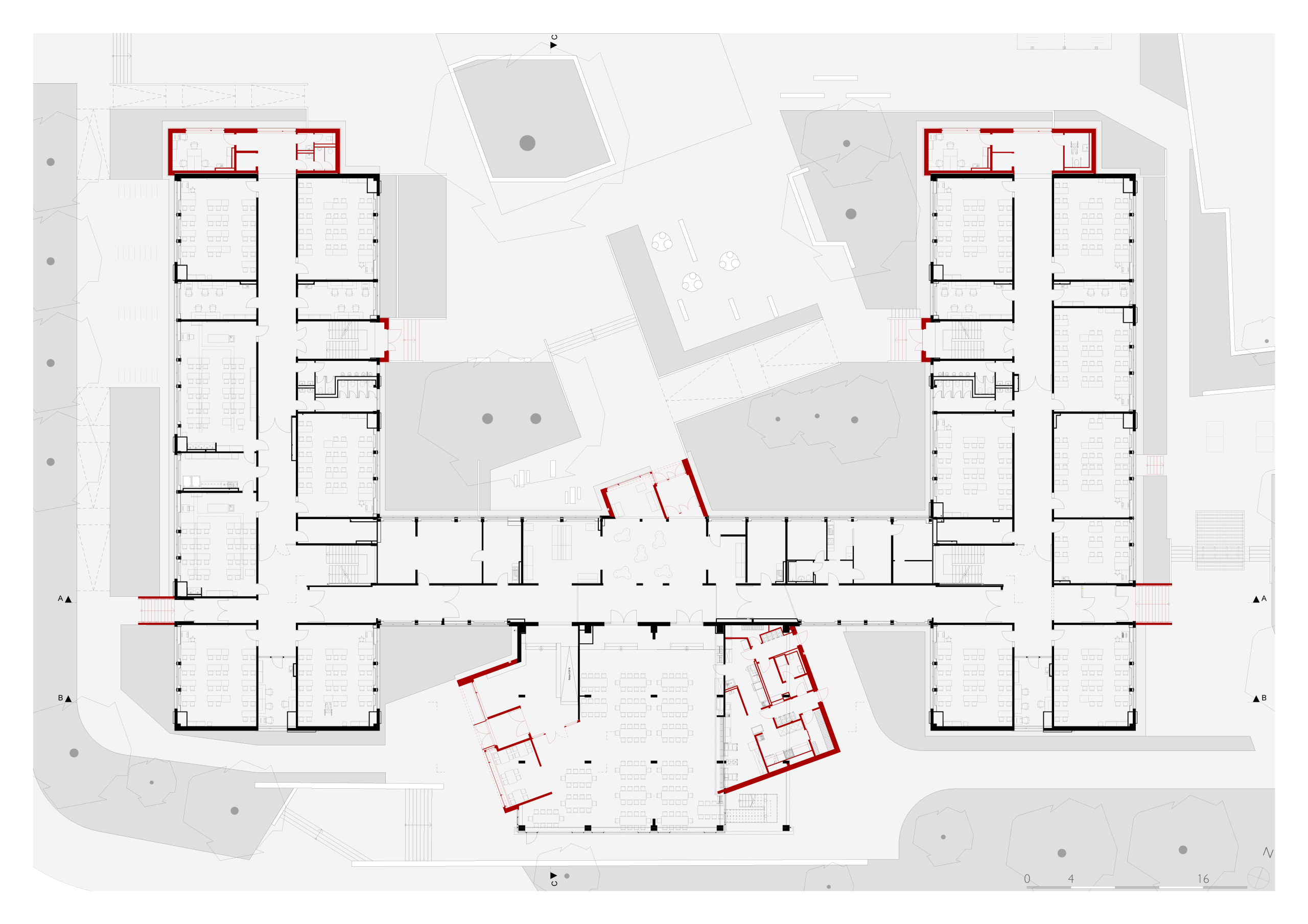
Die in den 1970er Jahren errichtete Schulanlage in Betonfertigteilbauweise (LGBW-System) wurde erfolgreich in drei Bauabschnitten umfassend saniert und funktional neu organisiert. Das Hauptziel, die bestehende Struktur unter Erhalt der wesentlichen Trag- und Grundrisssysteme an aktuelle schulische Anforderungen anzupassen, energetisch zu optimieren und barrierefrei auszubauen, konnte vollständig realisiert werden. Trotz der Herausforderung, die Maßnahmen unter laufendem Schulbetrieb umzusetzen, wurden der Bauablauf und die Nutzung präzise aufeinander abgestimmt.
Im Zuge des ersten Bauabschnitts erfolgten wesentliche Eingriffe in den Verbindungsbau. Der ursprünglich offene Aulabau wurde im Erdgeschoss geschlossen, wodurch wertvolle Räume für den Speiseraum, die Küche und einen zentralen Eingang entstanden sind. Die neu geschaffene Eingangshalle bildet nun das räumliche Zentrum und verknüpft die verschiedenen Gebäudeteile miteinander. In diesem Bereich wurden zudem die Verwaltung, das Lehrerzimmer und der Konferenzraum konzentriert. Die Aula blieb als multifunktionaler Raum mit flexibler Nutzung erhalten und verfügt nun über eine integrierte Zubereitungsküche.
Der zweite und dritte Bauabschnitt konzentrierten sich auf die energetische Sanierung und die funktionale Anpassung der Schulflügel. Dabei wurden die bestehenden Grundrisse gezielt für moderne Schulkonzepte weiterentwickelt, barrierefreie Erschließungen ergänzt und die Sanitärbereiche neu geordnet. Diese Maßnahmen stärken die Nutzungsflexibilität nachhaltig. Im Zuge des Fensteraustauschs wurden zudem moderne Klassenraumlüftungen mit Wärmerückgewinnung in die Fassadengestaltung integriert.
Während die Obergeschosse nun Raum für Fachbereiche und Fachkabinette bieten, nehmen die Untergeschosse unter anderem Musik-, Proben- und Fitnessräume auf. Ergänzende Anbauten setzen zudem gezielte architektonische Akzente im gesamten Ensemble. Abschließend wurde auch der Schulhof unter Erhalt des wertvollen Baumbestands neugestaltet und vollständig barrierefrei erschlossen.
